Сравнение по основным характеристикам пеноплекса и пенопласта

Содержание

  1. Отличия в структуре и теплопроводности материалов
  2. Сравнение по прочности и по цене
  3. Влаго- и паропроницаемость
Оглавление:
  • Отличия в структуре и теплопроводности материалов
  • Сравнение по прочности и по цене
  • Влаго- и паропроницаемость

Пенопласт и пеноплекс принято считать взаимозаменяемыми строительными материалами. Как правило, пенопласт это фактически тот же самый пенополистирол, а пеноплекс тот же пенополистирол, но только экструдированный.

Пеноплекс

Пеноплекс это экологически чистый материал, который отличается малой теплопроводностью и отлично подходит для утепления стен, кровли, фундамента и межэтажных перекрытий.

Эти материалы являются самыми распространенными в утеплении фасадов зданий. Хоть они и очень похожи, важно уметь выбирать материал правильно. Для этого нужно знать основные их отличия. Поэтому рассмотрим их более подробно по основным характеристикам и проведем сравнение этих материалов.

Отличия в структуре и теплопроводности материалов

Сравнение толщины различного материала для утепления стены

Сравнение толщины различного материала для утепления стены.

1-ое отличие состоит в самой структуре материалов, которая напрямую зависит от технологии производства. Пенопласт делается путем вспенивания, в результате чего на выходе получаются плиты из гранул, внутри которых очень много пустот. С одной стороны, эти пустоты в какой-то степени позволяют материалу дышать. С другой они несколько понижают теплоизоляционные свойства материала, так как нет сильной спрессованности.

Пеноплекс же делается при помощи специального процесса экструзии, в результате которого используются большое давление и высокая температура. За счет этого структура материала имеет намного меньший диаметр пор, в результате чего он более спрессован.

Таким образом, можно сделать вывод о различии в степени теплопроводности материалов. На самом деле такая разница не превышает 0,1. Поэтому тепловые свойства пеноплекса и пенопласта хоть и отличаются, но ненамного. При этом для более больших площадей обшивки здания все же специалисты больше рекомендуют использовать пеноплекс, так как немного можно сэкономить на толщине листов.

Вернуться к оглавлению

Сравнение по прочности и по цене

Характеристики пеноплекс

Характеристики пеноплекс.

Следующая важнейшая характеристика для сравнения это механическая прочность материалов. Это очень важно, особенно тогда, когда требуется производить сложные работы с частым разрезанием материалов на определенные части. Здесь разница очень большая почти в 4 раза! Причем более прочным считается именно пеноплекс.

Это различие дает основание сделать вывод, что пенопласт хорошо использовать для внешнего утепления, в то время как пеноплекс является идеальным вариантом для утепления стен внутри дома и даже полов. Во-первых, толщина пеноплекса намного меньше, что экономит площадь комнаты внутри. А во-вторых, за счет высочайшей своей прочности пеноплекс способен выдерживать даже очень большие нагрузки на сжатие, при этом не деформируясь на протяжении долгого времени. Даже несколько листов пенопласта не смогут дать эффекта 1-го тонкого листа пеноплекса.

Еще одна сравнительная характеристика это ценовая политика данных материалов. Конечно же, цена пенопласта намного ниже стоимости пеноплекса за счет того, что второй обладает несколько лучшими характеристиками. Но с другой стороны, даже самого тонкого листа второго вам будет достаточно для утепления, в то время как даже несколько слоев первого могут не дать такого эффекта.

Вернуться к оглавлению

Влаго- и паропроницаемость

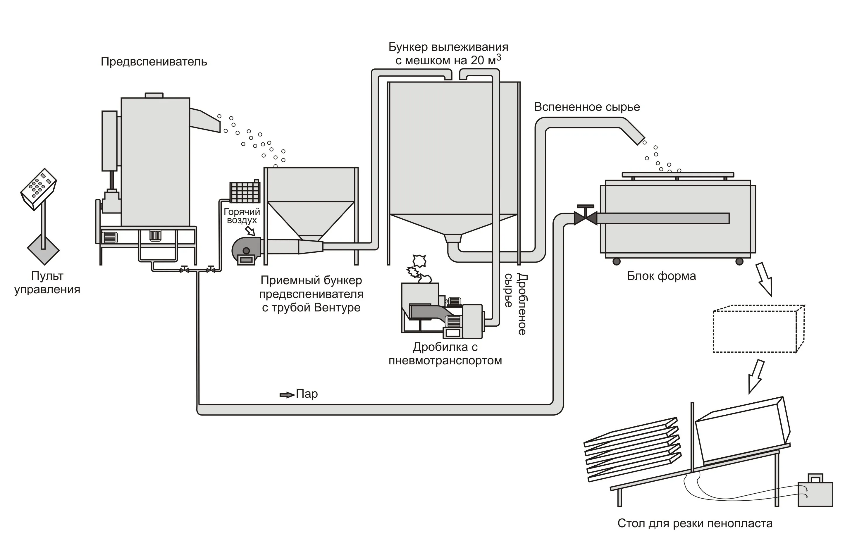
Схема процесса производства пенопласта

Схема процесса производства пенопласта.

Влаго- и паропроницаемость являются тоже важными характеристикам этих взаимозаменяемых материалов. Это особенно внимательно нужно учитывать тогда, когда при помощи этих конструкций вы собираетесь утеплять полы или стены внутри жилых помещений или офисов. Ведь от этого будет зависеть не только степень влажности в помещении, а еще и степень токсичности.

Итак, водопоглощение стандартного пенопластового листа составляет примерно 2%, а пеноплекса около 0,35%. Разница большая, поэтому это говорит само за себя: пеноплекс в этом плане намного лучше. Он практически не пропускает влагу в помещение, что гарантирует вашему дому защиту от появления грибка и сырости. Если вы выберете для внутреннего утепления довольно качественный пеноплекс, можно обойтись и без гидроизоляционной пленки. Но если вы решите утеплить помещение несколькими листами даже самого качественного пенопласта, эту пленку монтировать все равно будет нужно.

И наконец, что касается паропроницаемости, то за счет больших пор пенопласт лучше «дышит». Но и пеноплекс довольно неплохо обладает этим свойством. Если в помещении не будет много пара, как в бане или на кухне, где постоянно происходит приготовление пищи, то практически никаких токсических веществ выделяться не должно.

Для разных целей в ремонте и строительстве как пеноплекс, так и пенопласт имеют ряд своих преимуществ, в которых и заключается разница.

Прежде чем покупать материал, четко определитесь и рассчитайте количество материала, а только потом принимайте решение, не забывая при этом об особенностях.



Другие статьи